Проектирование металлоконструкций
Проектирование металлоконструкций: быстро, точно, качественно
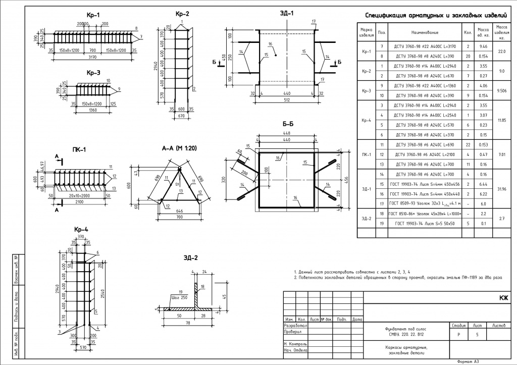
Одно из направлений деятельности компании – проектирование металлоконструкций. Перед началом строительства на каждое здание составляется проектный пакет документов, разработанный с учетом рельефа, параметров площади и пожеланий клиента. Трудоемкий процесс состоит из разработки рабочих и детализированных чертежей. Расчет металлоконструкций происходит в 2 стадии.
На первой составляются архитектурно-строительные эскизы, рассматриваются версии несущих конструкций. В чертежах КМ (металлических конструкций) расписаны:
- компоновка каркаса;
- размеры и расход материала;
- сопряжение деталей;
- количество узлов.
В сопровождающей записке имеются силовые расчеты для определения размеров сечения каркаса, необходимых для:
- быстровозводимых зданий;
- ангаров;
- складов из металлоконструкций;
- перекрытий домов;
- временных построек, веранд.
Для сложных проектов дополнительно проводятся динамические расчеты. На 2 этапе разрабатываются чертежи КМС производственного процесса и монтажа. Разработки ведутся при поддержке специальных программ.
Проектирование складов и зданий из металлоконструкций
Закажите у нас проектные расчеты для объектов. Обратившись в компанию, предлагающую комплексное решение, можно прилично сэкономить средства. Мы изготовим конструкции, обеспечим антикоррозийную защиту, проведем монтаж.
Специалисты рассчитают проект с наименьшей массой тоннажа, что позволит сэкономить при строительстве, так как стоимость металла – один из основных пунктов расхода. Инженеры предложат лучшие варианты несущего каркаса, быстро сделают работу.
Стоимость зависит от конструктивных особенностей, сроков, варианта установки. Монтажные узлы на болтах и сварка низколегированной или углеродистой стали отличаются не только технологией крепления, но и ценой. Звоните, мы предложим лучшее решение!
Теги:
Усиление фундаментов стен и перекрытий металлоконструкциями
Испытания лестничных конструкций
Комплексное исследование технического состояния конструкций
Сварочные работы по металлу
Лазерная резка листового металла
Пескоструйная и абразивная обработка металла
Огнезащита металлических конструкций
Антикоррозийная обработка
Цинкование холодное и горячее
Вальцовка листового металла
Фрезерные, токарные работы
Гибка труб для металлоконструкций
Плазменная резка металла
Зачистка резервуаров. Очистка емкостей ГСМ от осадков нефтепродуктов
Усиление проемов металлоконструкциями
Реставрация, ремонт металлоконструкций
Монтаж металлоконструкций
Отправьте ваш запрос на email: info@aresmet.ru
или через форму ниже
Напишите нам
Приходите в гости
Адрес производства
д. Хорошилово, Дмитровский муниципальный округ, Московская область
Время работы
Пн-Пт
С 9:00 до 19:00
Сб-Вс
Выходные
Продукция
- Конструкции межэтажных перекрытий
- Стальные лестничные конструкции
- Пожарные металлические лестницы
- Бетонные лестницы для дома
- Вертикальные лестницы
- Винтовые лестницы из металлокаркаса
- Внутренние лестницы из металла
- Железобетонные лестницы
- Железобетонные лестничные ступени
- Лестницы для детских садов
- Лестницы для кровли и крыши
- Лестницы для общеобразовательных учреждений
- Лестницы для резервуаров
- Лестницы на второй этаж
- Лестницы на металлокаркасе
- Лестницы с площадкой
- Лестничные конструкции для квартир
- Металлическая винтовая лестница
- Металлические косоуры для лестниц
- Металлические лестницы 3 типа
- Металлические лестницы для дома и коттеджей
- Металлические маршевые лестницы
- Металлические эвакуационные лестницы
- Монолитные железобетонные лестницы
- Наружные и внутренние лестницы для зданий
- Наружные лестничные конструкции
- Оцинкованные лестницы
- П-1.1 Вертикальные лестницы без ограждения
- П-1.2 Вертикальные лестницы с ограждением
- П-2 Маршевые лестницы
- П1 - вертикальные лестницы
- Прочные лестничные конструкции ручной сварки
- Технические лестницы
- Уличные и межэтажные лестницы для загородного дома
- Эвакуационные лестницы
- Сельскохозяйственные здания
- Бункера и отстойники
- Быстровозводимые конюшни из металлоконструкций
- Быстровозводимые коровники
- Быстровозводимые овощехранилища
- Быстровозводимые овчарни
- Быстровозводимые свинарники из металлоконструкций
- Быстровозводимые фермы
- Быстровозводимые фермы для КРС
- Быстровозводимые фруктохранилища
- Быстровозводимые хранилища для картофеля
- Зернотоки для сельскохозяйственных предприятий
- Каркасные сенохранилища
- Кроликофермы (крольчатники)
- Металлические зернохранилища силосного типа
- Металлические курятники для птицеводства
- Металлические силосы для хранения
- Металлические теплицы
- Птичники (птицефермы)
- Быстровозводимые модульные здания
- Блочно-модульные котельные
- Быстровозводимые автосалоны
- Быстровозводимые гостиницы
- Быстровозводимые киоски
- Быстровозводимые магазины
- Быстровозводимые модульные жилые корпуса
- Быстровозводимые офисы
- Быстровозводимые школы
- Логистические комплексы
- Металлоконструкции для модульных АЗС
- Модульные административно-бытовые корпуса (АБК)
- Модульные детские сады
- Модульные КПП (Контрольно пропускные пункты)
- Модульные лаборатории
- Модульные офисы продаж
- Модульные ФАП, аптеки
- Общественные объекты
- Административные здания
- Быстровозводимые гаражи
- Быстровозводимые здания для автосервисов
- Быстровозводимые здания для пожарных служб
- Быстровозводимые крытые рынки из металла
- Быстровозводимые модульные боксы для шиномонтажа
- Быстровозводимые парковочные площадки
- Быстровозводимые сервисные здания и павильоны
- Каркасные боксы и навесы для автомоек
- Металлические паркинги
- Спортивные сооружения
- Торговое модульное здание
- ФОКи (Физкультурно оздоровительные комплексы)
- Быстровозводимые ангары из металлоконструкций
- Входные группы из металла
- Дополнительные услуги
- Антикоррозийная обработка
- Вальцовка листового металла
- Гибка труб для металлоконструкций
- Зачистка резервуаров. Очистка емкостей ГСМ от осадков нефтепродуктов
- Испытания лестничных конструкций
- Комплексное исследование технического состояния конструкций
- Лазерная резка листового металла
- Монтаж металлоконструкций
- Огнезащита металлических конструкций
- Пескоструйная и абразивная обработка металла
- Плазменная резка металла
- Проектирование металлоконструкций
- Реставрация, ремонт металлоконструкций
- Сварочные работы по металлу
- Усиление проемов металлоконструкциями
- Усиление фундаментов стен и перекрытий металлоконструкциями
- Фрезерные, токарные работы
- Цинкование холодное и горячее
- Металлические решетки
- Металлические стеллажи
- Консольные стеллажи для хранения из металла
- Металлические поддоны и паллеты
- Металлические стеллажи для гаража
- Металлические этажные стеллажи
- Набивные стеллажные системы
- Паллетные стеллажи для складирования грузов на поддонах
- Системы мобильных стеллажей
- Стальные архивные стеллажи
- Стеллажи для кабельных барабанов и катушек
- Универсальные и среднегрузовые металлические стеллажи
- Фронтальные стеллажи
- Металлические эстакады
- Металлоконструкции для ЛЭП и подстанций
- Металлоконструкции для стоянок и парковок
- Надежные металлокаркасные конструкции
- Нестандартные металлоконструкции
- Парково-садовые изделия
- Порошковая покраска металла
- Рекламные металлоконструкции
- Сварные строительные металлоконструкции
- Алюминиевые фасады для зданий и сооружений
- Межэтажные перекрытия металлическими балками
- Металлическая навесная площадка
- Металлические балки перекрытия
- Металлические выносные площадки
- Металлические колонны
- Металлические прогоны
- Металлоконструкции куполов
- Прочные связи из металлопроката
- Сварные металлические фермы
- Сварные ригели различного сечения
- Строительная подвесная люлька
- Корзины для кондиционеров
- Малые архитектурные формы (МАФ)
- Металлические ворота
- Металлические емкости и резервуары
- Баки аккумуляторы для горячей воды. Теплоаккумуляторы
- Емкости и баки для воды
- Железобетонные резервуары
- Металлические баки для хранения воды
- Металлические кессоны
- Металлические резервуары
- Подземные и наземные резервуары для АЗС
- Профессиональный ремонт металлических резервуаров для хранения
- Резервуары для нефти и нефтепродуктов
- Резервуары для хранения сжиженного газа
- Сварные баки с антикоррозийной защитой из металла
- Стальные пожарные резервуары для воды
- Металлические закладные детали
- Металлические козырьки, навесы, заборы
- Металлические ограждения
- Декоративные газонные ограждения из металла
- Кровельные огражения
- Металлические ограждения колодцев
- Металлические ограждения лестничных маршей
- Ограждения балконов и лоджий
- Ограждения входных групп
- Ограждения для бассейнов
- Ограждения для пандусов из нержавеющей стали
- Ограждения для школ и детских учреждений
- Передвижные ограждения
- Пешеходные ограждения
- Разделитель потоков людей
- Строительные ограждения
- Элементы ограждений из металла
- Металлические пандусы
- Технологические металлоконструкции
- Вентиляторные градирни
- Грузоподъемные траверсы для перемещения грузов
- Изготовление металлических труб и стальных отводов
- Компенсаторы трубопровода
- Металлические водонапорные башни
- Металлические сетчатые контейнеры для склада
- Металлоконструкции для мостов
- Монорельсовые и крановые подвесные системы
- Надежные подкрановые пути для промышленного оборудования
- Опорные крепления башенных кранов (пристежки, связи, тяги, рамки)
- Опоры для трубопроводов
- Переходные и технологические площадки
- Прочные металлические рамы
- Разгрузочные рамы, антивандальные и защитные конструкции
- Сварные конструкции из металла
- Шумопоглощающие экраны
Почему с нами удобно работать:
- Нормальное юрлицо
- Выезд на замер в день обращения
- Начало работ в течение 48 часов
- Работаем с НДС
- Огромный опыт - более 500 сданных объектов
- Можем вести монтаж в ночную смену
Мы делали заказы для:

Геннадий
Антон
Алексей
Евгений